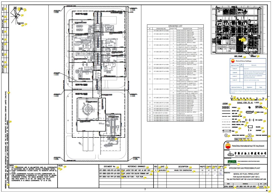
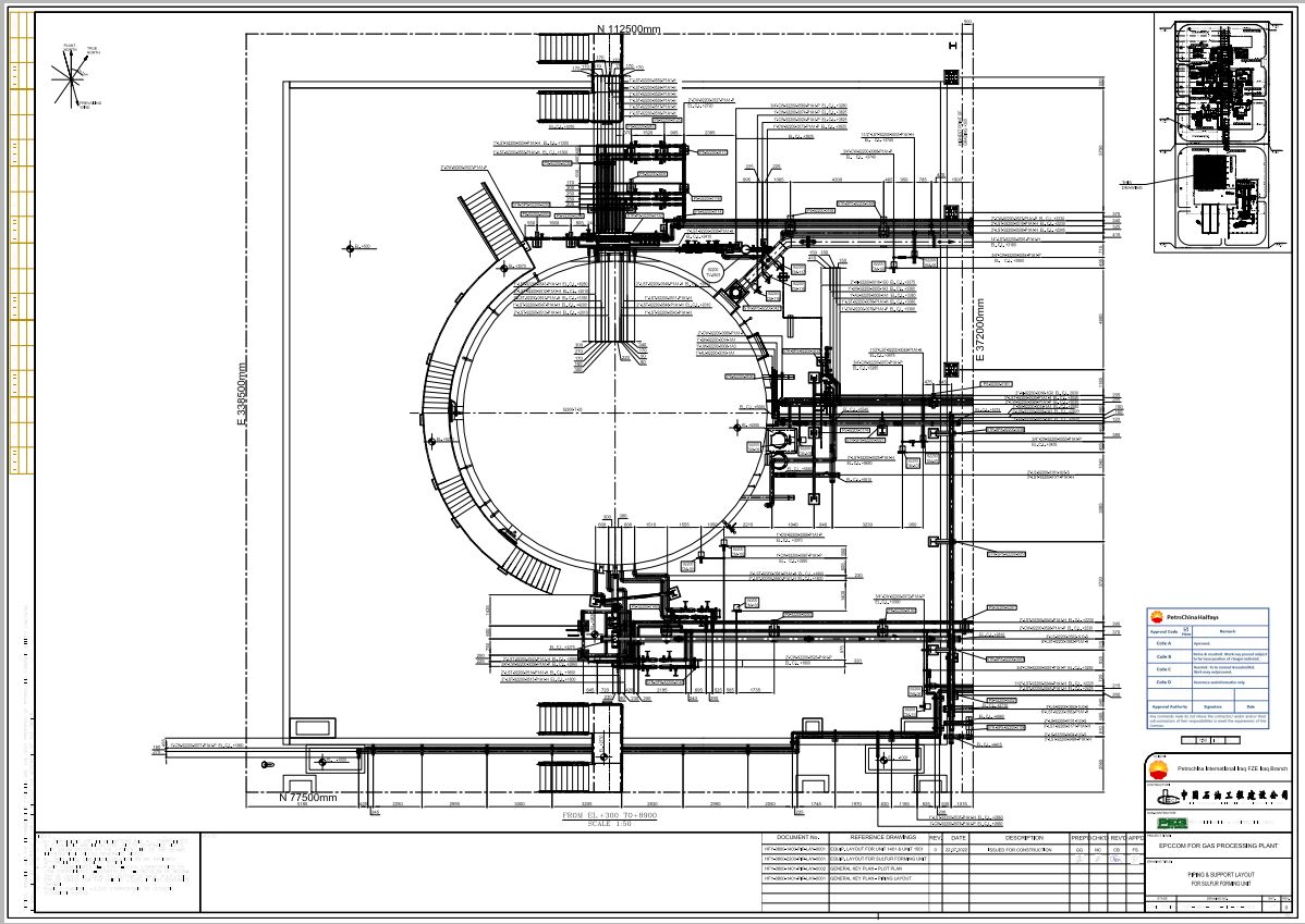
HALFAYA PROJECT SURFACE FACILITY – LOCATION: IRAQ
Halfaya Project Surface Facility
Location: Iraq
Project Overview
Year: 2023
Client: PEG
Project Name: Halfaya Project Surface Facility
Location: Iraq
Work Done
Activities performed included:
- Extraction of the piping plans from the model with verification and dressing using AVEVA E3D software
- Support modeling for areas E-F of the plant using AVEVA E3D software
