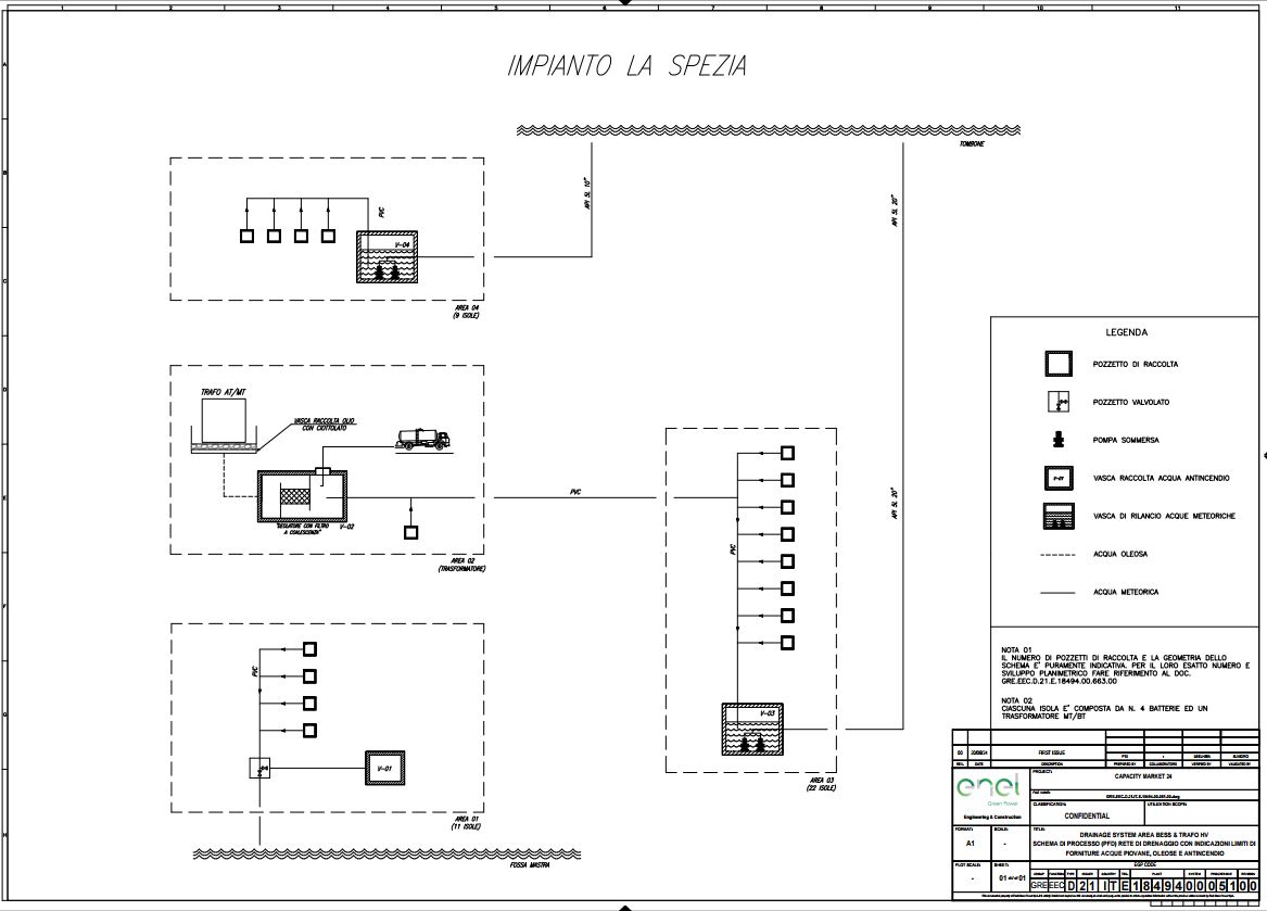
BESS PROJECT – LOCATION: LA SPEZIA
BESS Project
Location: La Spezia, Italy
Project Overview
Year: 2024
Client: Enel Green Power
Project Name: BESS Project
Location: La Spezia
Work Done
Study of fire prevention networks and services.
Preparation of the following documentation:
- General plan
- Underground drawings of service lines
- List of components/equipment/valves
- Fire hydrant network drawing and typical details
- Material lists
